Skip to main content
Skip to footer
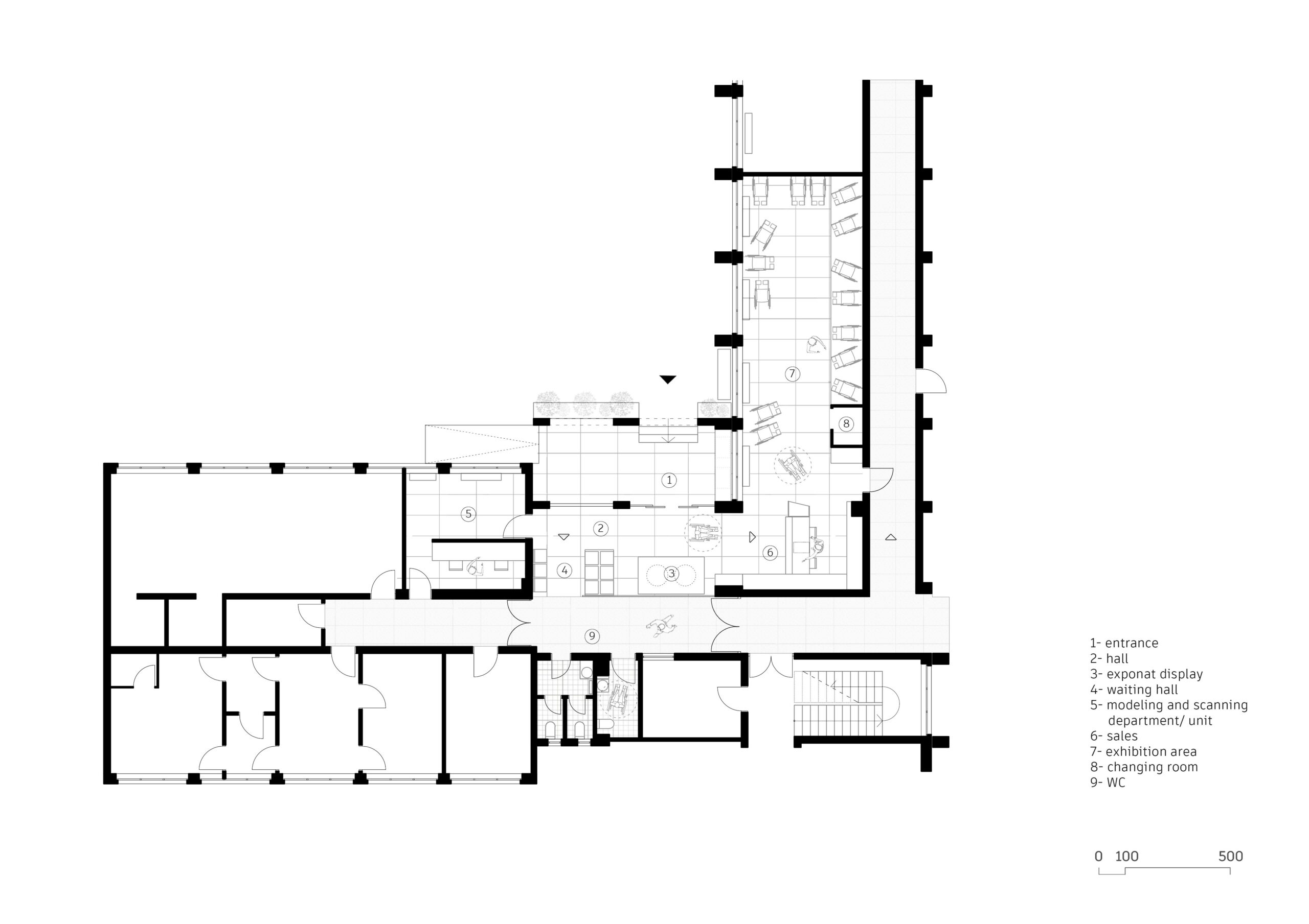
Slavej Showroom
Location: skopje, N. Macedonia
Project: Orthotics & prosthetics Showroom
MEMORIAL DE BITOLA
TASKFORCE WORKSPACE 1
check out this project on
YouTube
check out this project on
YouTube
check out this project on
YouTube
check out this project on
YouTube
check out this project on
YouTube
check out this project on
YouTube
Professional advice and guidance
Master planning and community development
Programming and furnishings
Design from concept to structure
ABOUT
WORK
SERVICES
CONTACT
PORTFOLIO
ABOUT
WORK
SERVICES
CONTACT
PORTFOLIO
SUPERBLOCK in motion
MEMORIAL DE BITOLA
SLAVEJ SHOWROOM
TASKFORCE WORKSPACE 1
TASKFORCE WORKSPACE 2
HOUSE CRNICHE
APARTMENT DURRES
APARTMENT DENI VARSHAVSKA
AUSTRIAN GERMAN LIBRARY
MARAI
NYSK
IMAGE PR
ASURA
ALBI GROUP
CRAZY LABS
H-TEC
MAMA's
TASKFORCE WORKSPACE 3
SORAVIA
PRIMECLASS- TAV
TKS WORKSPACE
MAKPETROL
PROCREDIT BANK- KAVADARCI
HOUSE BEROVO 1
HOUSE BEROVO 2
HOUSE HROM
HOUSE LJUBOTEN
HOUSE MAVROVO
DOUBLE HOUSE MAVROVO
HOUSE KRUSHEVO
check out this project on
YouTube
check out this project on
YouTube
check out this project on
YouTube